杭州南洋裝飾紙有限公司,成立于2004年,總部位于浙江杭州。公司專業生產各類裝飾紙,包括木紋紙、石紋紙、花紋紙等,產品廣泛應用于地板、家具、防火板、模壓門板、生態板等裝飾材料的表面裝飾。
.jpg)
博革咨詢攜手南洋裝飾紙,共同應對市場需求的迅猛增長。鑒于該企業年銷售額已突破3億元大關,我們助力其打造了杭州新洋科技全新工廠。我們的核心目標是構建一座標準化、自動化、數字化、智能化的花園式工廠,以精益布局規劃設計為導向,實現高端、安全、高效的生產運營。
.jpg)
自2021年5月起,博革咨詢便全面啟動為新洋科技工廠的精益布局咨詢服務。我們以印刷工藝為核心框架,以最大化設備產能和效率優化為首要目標,精心策劃并實施了多項關鍵規劃工作。這包括廠區物流與人流的科學規劃、公共設施的合理布局、車間布局的精準設計,以及自動化生產線的全面規劃。
.jpg)
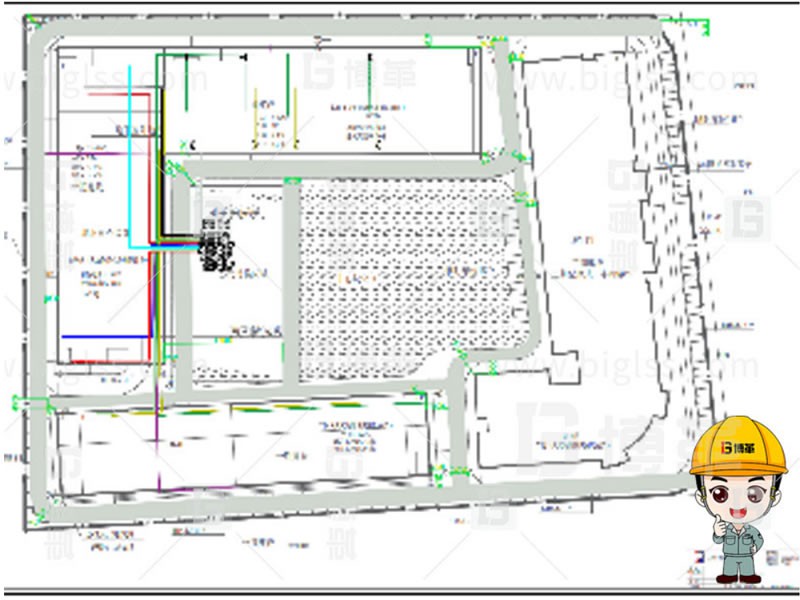
博革顧問團隊精心規劃了數字化采集和展示點位,確保數據的精準采集與實時展示,為企業決策提供了堅實的數據支持。同時,我們運用前沿的三維模擬技術,精確模擬工廠與車間的布局,確保每一寸空間都得到高效利用。在施工階段,我們繪制了詳盡的現場施工圖紙,為施工團隊提供了清晰的指導,確保了施工質量和進度。最后,在工廠建成后,我們還提供了專業的目視化設計建議,讓整體布局既高效又美觀,進一步提升了工廠的形象與競爭力。
.jpg)
這一系列的服務舉措,不僅為新洋科技工廠的順利建設和高效運營提供了全方位的智力支持,更給新洋科技帶來了實實在在的效益和競爭力提升。通過我們的精益布局咨詢服務,新洋科技工廠的生產效率得到了顯著提升,設備產能得到了最大化利用,有效降低了生產成本。同時,廠區物流與人流的合理規劃,使得生產流程更加順暢,提高了整體運營效率。此外,數字化采集和展示點位的規劃,使得新洋科技工廠的生產數據得到了實時采集和展示,為企業的決策提供了有力的數據支持。
.jpg)
博革咨詢將繼續保持對南洋裝飾紙發展的密切關注,確保我們的服務始終貼合企業的實際需求。我們將持續提供全方位、高效的咨詢服務,助力南洋裝飾紙在各個發展階段取得卓越成果。無論是技術創新、市場拓展還是管理優化,我們都將竭誠陪伴,為企業的未來發展注入源源不斷的動力。相信在我們的共同努力下,企業定能不斷書寫新的輝煌篇章。